Casa indipendente in Vendita a Rea
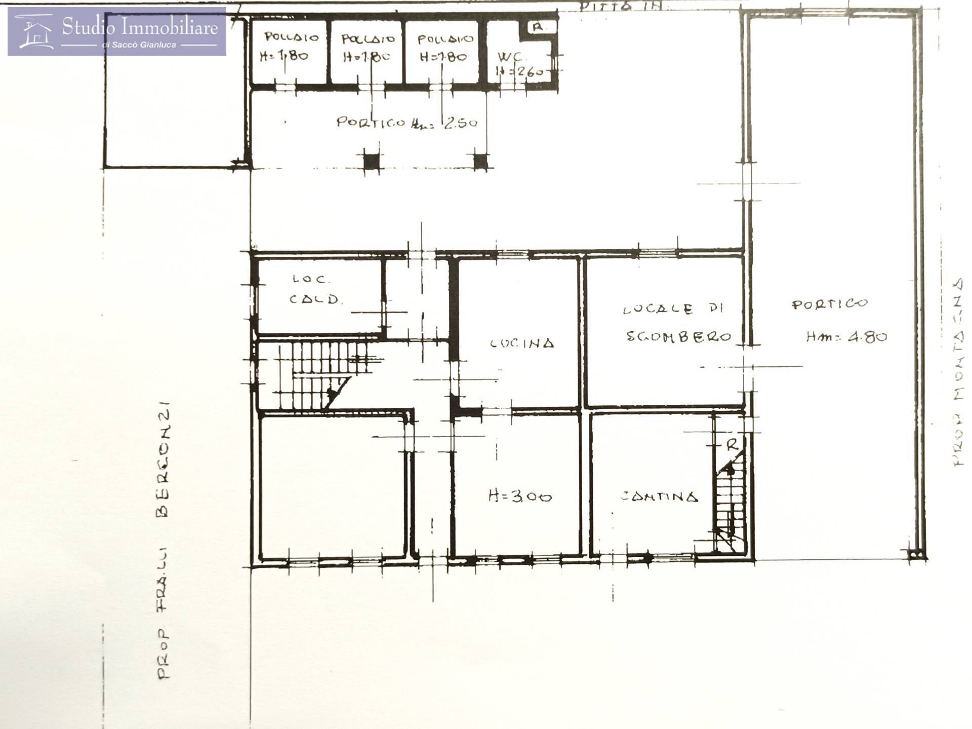
Casale indipendente in Vendita a Rea ristrutturato negli anni 70’ , disposto su due livelli abitativi con accorpato lotto di terreno privato di mq. 3000 , costituito al piano terra da ingresso, soggiorno, cucina abitabile e servizio/lavanderia , mentre al piano primo trovano collocazione le tre camere da letto matrimoniali, due bagni, ripostiglio e locale pluriuso, con adiacenti due locali accessori, locale di sgombero al piano terra e rustico in corpo staccato con autorimessa e cassero .
L’abitazione è libera sui quattro lati ed ideale ad un ampio nucleo familiare che ambisce ad ampi spazi senza rinunciare all’indipendenza.
Contattaci
Studio Immobiliare di Saccò Gianluca
Via Depretis 86
Bressana Bottarone (PV)
Telefono 0383802029
Fax 0383811259
Cellulare 3398016656
info@stimmobiliare.it
Immobili simili
Ultimo aggiornamento 14-10-2024
























