Villetta a schiera laterale in Vendita a Bressana Bottarone
Classe energetica
EP glnr: 47.86 kwh/m²
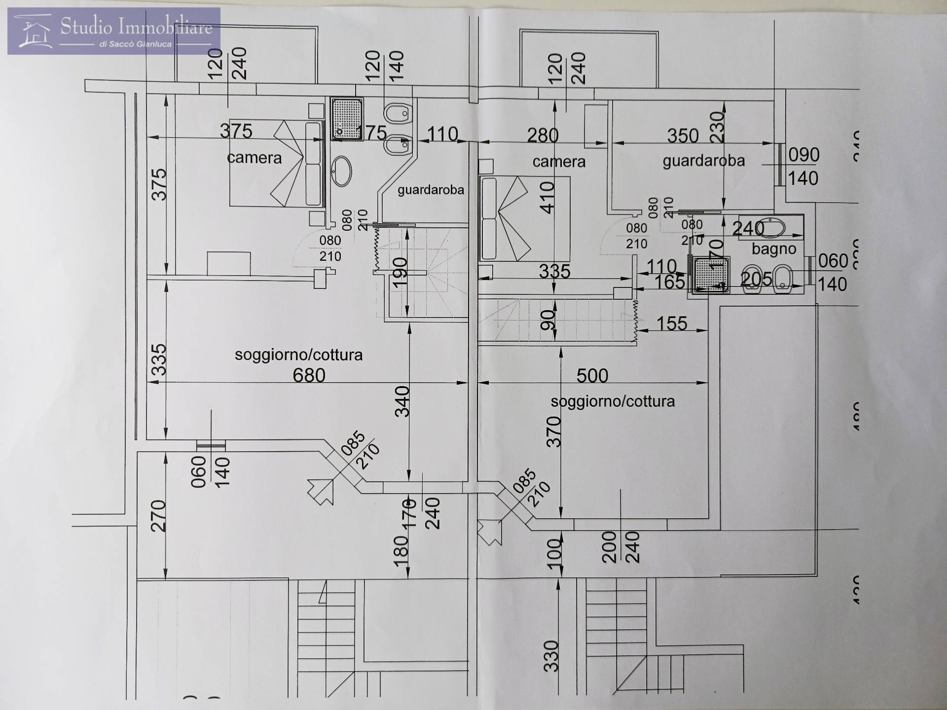
Ultima villetta laterale in fase di ultimazione FULL ELETTRIC in classe A4 con annesso giardino privato in Vendita a Bressana Bottarone contraddistinte da un innovativo design e disposte su unico piano abitativo. Ogni villetta comprende un ingresso tramite porticato, un soggiorno con cucina openspace, due camere da letto (di cui una con balcone) e un bagno. Al piano terra, accessibile tramite una scala interna, si trovano una cantina utilizzabile come taverna, un servizio/lavanderia, un locale tecnico (C.T.) e un'autorimessa. Ogni singola unità abitativa è dotata di un ricco capitolato e caratterizzata da: • Muri perimetrali isolati con cappotto esterno di 12 cm e isolamento tetto di 20 cm • Impianto di pompa di calore con pannelli radianti a pavimento per riscaldamento • Serbatoio d’accumulo per acqua calda • Raffrescamento con due split • Impianto di deumidificazione ambienti a ventilazione meccanica (VMC) • Pannello fotovoltaico per 6 kW • Predisposizione addolcitore • Serramenti esterni in PVC con vetri termoisolanti dotati di zanzariere (escluse le vetrate scorrevoli) • Tapparelle elettriche in alluminio • Basculante sezionale automatizzata • Predisposizione impianto di allarme e videocitofono • I locali interni saranno tinteggiati di colore bianco
Contattaci
Studio Immobiliare di Saccò Gianluca
Via Depretis 86
Bressana Bottarone (PV)
Telefono 0383802029
Fax 0383811259
Cellulare 3398016656
info@stimmobiliare.it
Immobili simili
Ultimo aggiornamento 28-03-2025





